Instagram
Home
Das Chalet
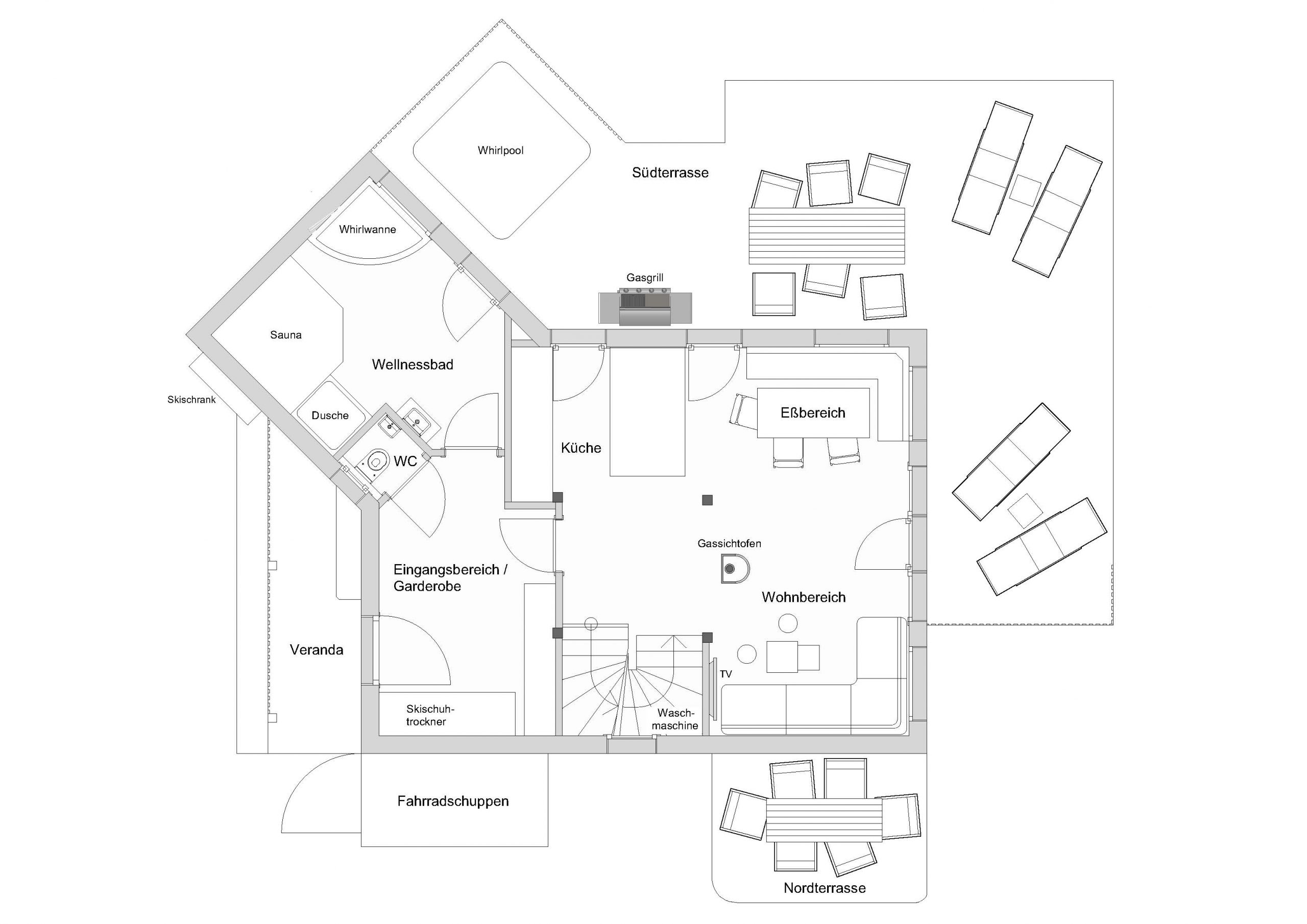
Grundriss Erdgeschoss
Grundriss Dachgeschoss
Grundstück
Ausstattung
Fotogalerie
Anreise
Gastronomie
Buchen / Preise
Sommerurlaub
Wandern
Murradweg / Murtalbahn
Radfahren / Mountainbiken
Badeurlaub
Golfen
Kinderaktivitäten
Winterurlaub
Skigebiet Kreischberg
Weitere Skigebiete
Langlaufen
Winterwanderungen
Kinderaktivitäten
Gästebuch
Kontakt
Impressum
Datenschutz
DE
EN
Zurück
WordPress Cookie Hinweis von Real Cookie Banner